改善房还有选择的空间吗?滁州这些四室户型千万别错过
扫描到手机,新闻随时看
扫一扫,用手机看文章
更加方便分享给朋友
随着二、三孩政策的出台,大户型成了置业新热门。这意味着四房变成了基本配置,到底什么样的户型,才能满足这一群体的购房需求呢。
由于土地价格攀升,各大开发商都会求稳以刚需户型为主,大户型少之又少。
除去地段、配套、景观、物业等一系列外在因素,多人口家庭如何更好的选择一个合理的户型?
1、明确家庭成员人数
二胎之家,至少需要3个卧室,如果家里有老人,则4室才能满足基本的居住需求。
2、房间大小及布局要合理
在有限的空间内,动静是否分离,卫生间的配置是否能满足需求等,都将直接影响居住的舒适性。
北京城房时代印
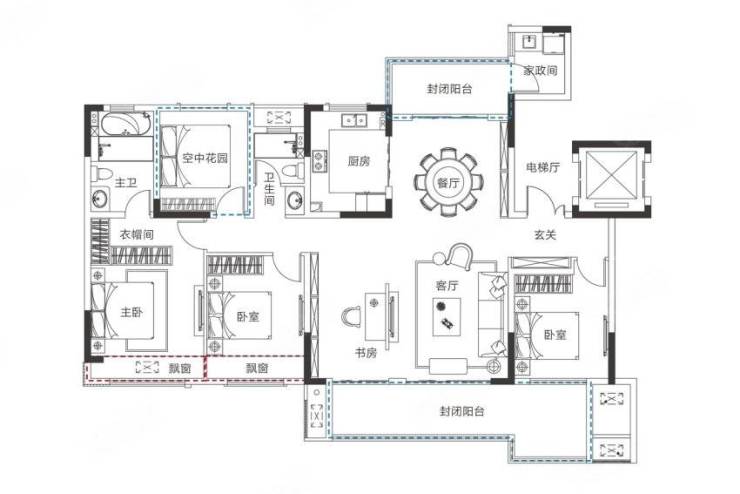
玄关入户,由玄关为界,南北分区,北侧为厨房、餐厅、空中花园。
而南区有两间卧室、书房和客厅,采光优越,其中主卧套房带有独卫和衣帽间。次卧连接阳台,拓展了室内空间,位置距离客卫也很近。
128平的建筑面积得到了充分利用,没有任何的空间浪费。
这套163平的4室洋房是典型适合四口之家生活居住的户型,保证了每位居住者的舒适度。
玄关虽然面积不大,但也充分起到了视觉屏障的作用,保证私密性;餐厨一体、餐客一体,北向阳台连接家政间的设计动线清晰。
主卧套房南向飘窗+独立卫浴的设计十分实用,客厅书房连接超大阳台,一年四季采光充足,两间次卧也是朝南,冬暖夏凉。
一步到位的四房设计和大尺度的空间享受,舒适性和实用性兼顾实属难得。
声明:本文由入驻焦点开放平台的作者撰写,除焦点官方账号外,观点仅代表作者本人,不代表焦点立场。


