重磅!城东这个楼盘规划方案调整公示!
扫描到手机,新闻随时看
扫一扫,用手机看文章
更加方便分享给朋友
为推行政务公开,引导公众参与和监督、根据《中华人民共和国域乡规划法》与《中华人民共和国行政许可法》规定,现对本项目予以批前公示。批前公示旨在征询公众意见,并非最终审批结果。如相关利害人对该规划项目有异议,请在公示期内按照下列提供的联系方式送行反馈。
一、项目概况
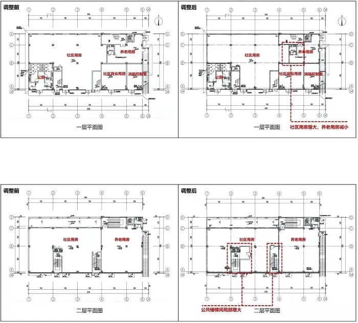
该项目位于上海路与长江路交叉口东北侧,建设单位为滁州城房时代置业有限公司。项目总用地面积为57764平方米,总建筑面积为162704.36平方米,用地性质为商住用地。现因房产面积测绘计算标准与方案复核计算标准不一致,为满足相关要求,对以下项目进行调整:
S7#楼;1.首层社区用房东端与养老用房相邻墙体东移,2.二层公共楼梯间局部增大。
二、公示时间:
2022年4月1日-2022年4月12日
三、公示地点:
1、项目建设现场对外醒目位置
2、滁州市自然资源和规划局网站
四、联系方式:
1、联系单位:滁州市自然资源和规划局
经开区国土规划技术服务中心 政策法规科
2、联系人:王辰 李元浩
3、联系电话:2177106 30672754
意见邮箱:kfqghiu@163.com
五、项目区位图
六、建设项目变更示意图
来源:滁州市自然资源和规划局
声明:本文由入驻焦点开放平台的作者撰写,除焦点官方账号外,观点仅代表作者本人,不代表焦点立场。


